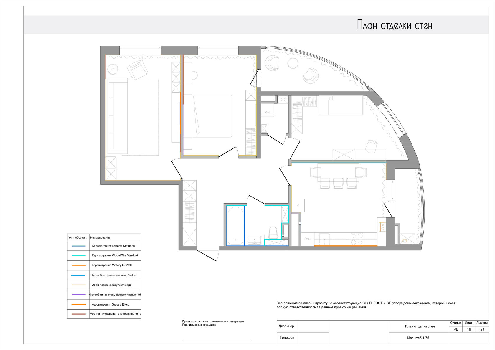
С радостью рассказываем о завершении нового дизайн-проекта квартиры в жилом комплексе Вересаево на улице Берберовская. В этом проекте мы преследовали цель создать уникальное и продуманное интерьерное решение, которое сочетает в себе удобство и современный стиль. Благодаря тщательному выбору материалов и оттенков, а также грамотной организации пространства, квартира получила светлую и уютную атмосферу. Мы интегрировали функциональные решения для хранения и удобной жизни, не забывая при этом про эстетическую составляющую. Итог — квартира, в которой каждая деталь работает на комфорт и радость обитателей, отражая их личность и вкус.
