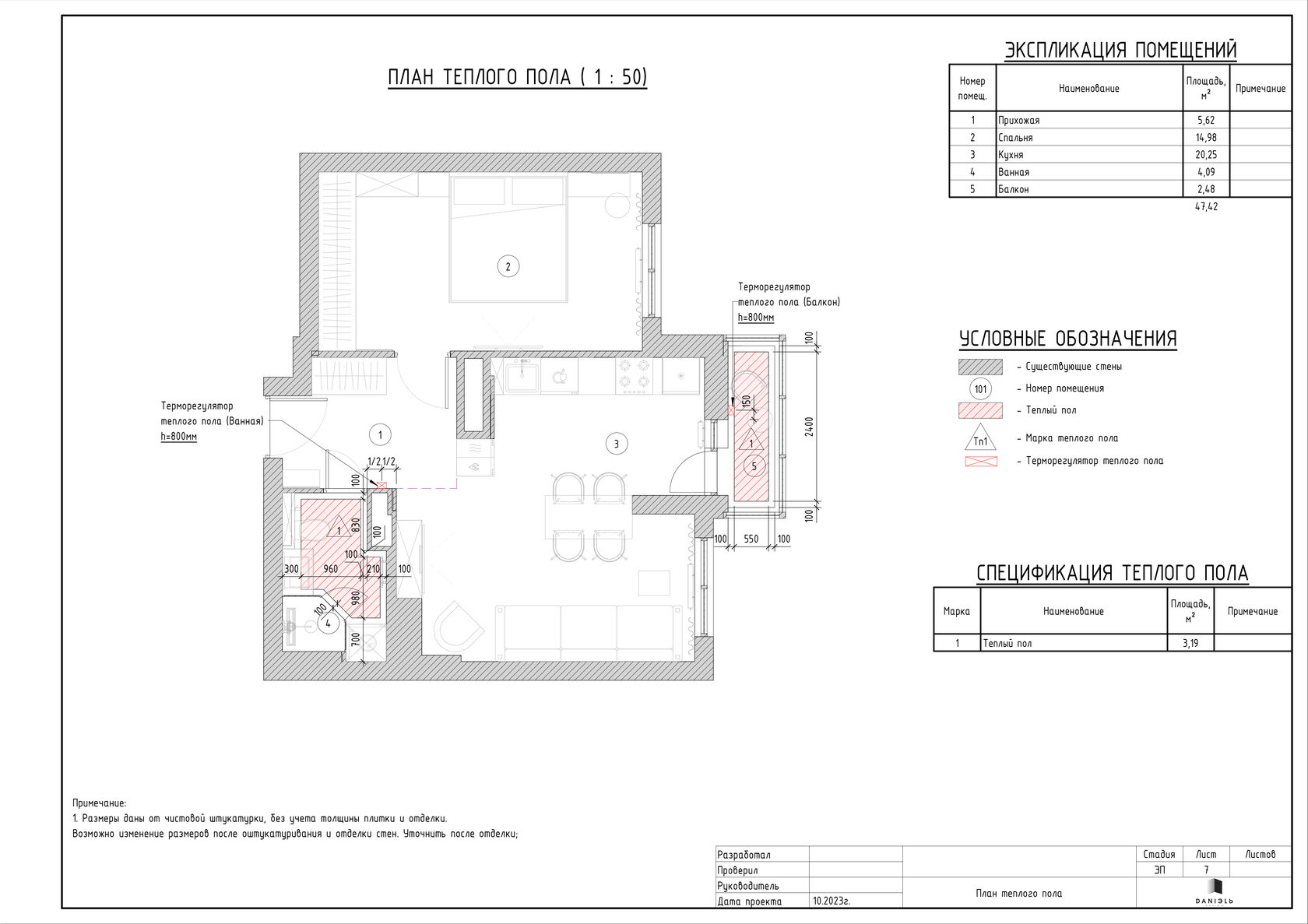
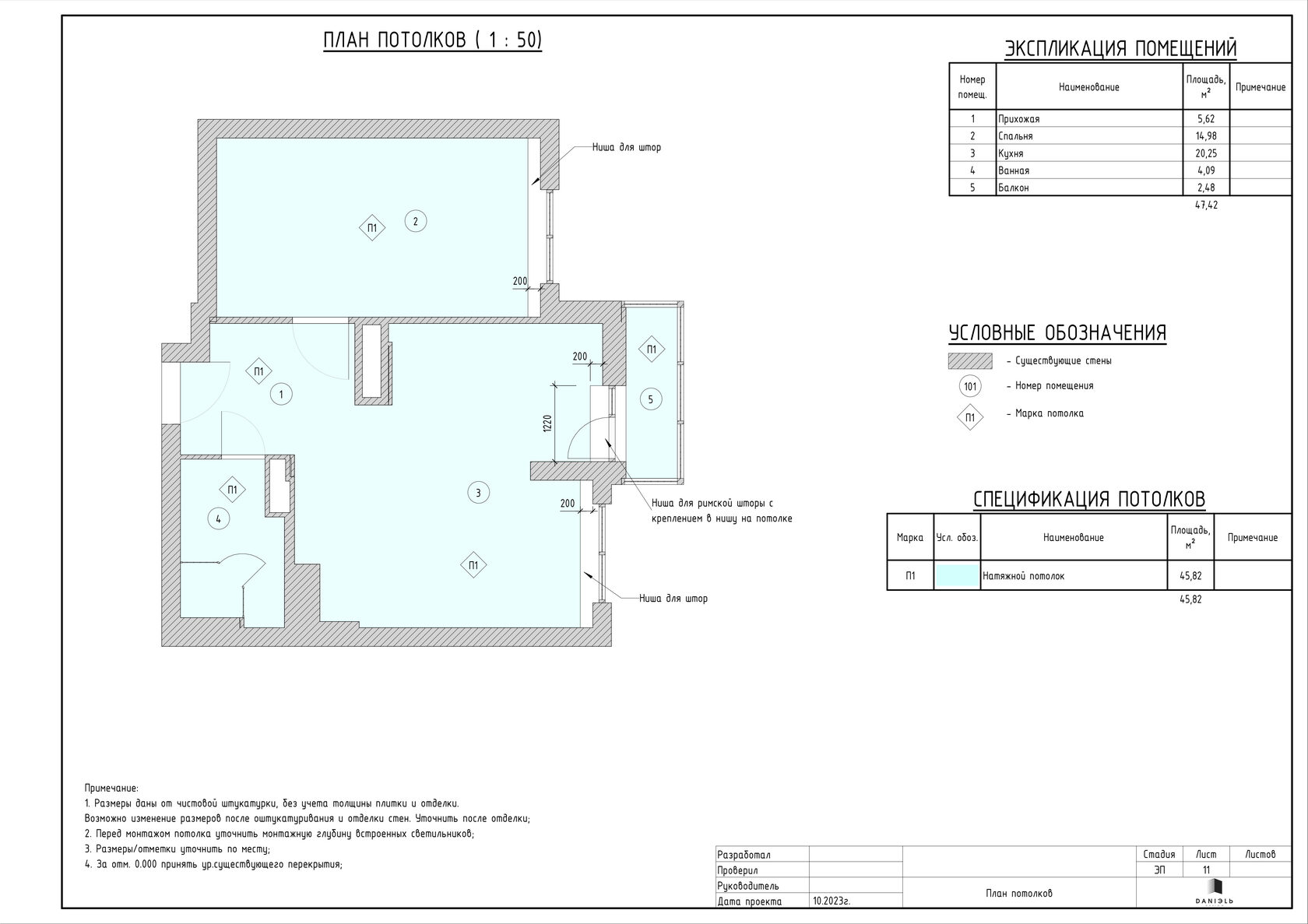
Рады поделиться нашим новым дизайн-проектом квартиры в жилом комплексе «Ленина, 46». В работе мы уделили особое внимание созданию интерьера, который сочетает в себе практичность и комфорт, полностью отвечая потребностям жильцов. Продуманная планировка позволила максимально эффективно использовать пространство, сохраняя при этом ощущение свободы и простора. Для отделки выбрали натуральные и долговечные материалы, а цвета подобрали так, чтобы создать спокойную и уютную атмосферу. Особое место в проекте занял продвинутый свет — он позволяет менять настроение комнаты в зависимости от времени суток. В итоге вышло стильное и функциональное пространство, в котором приятно жить и отдыхать.
