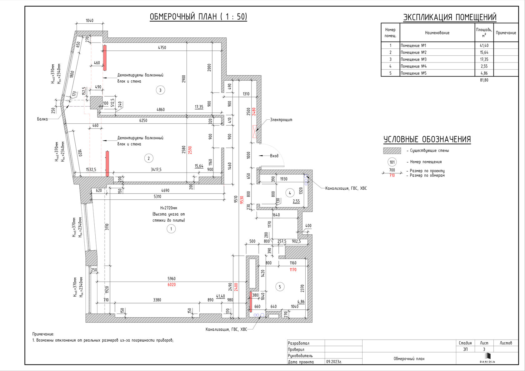
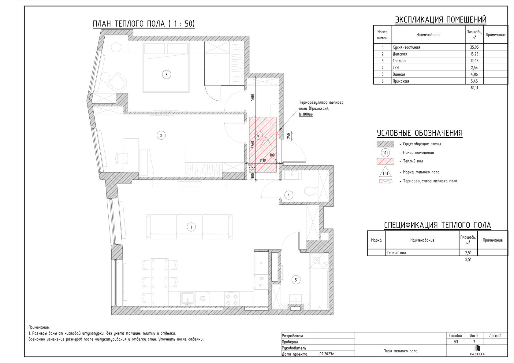
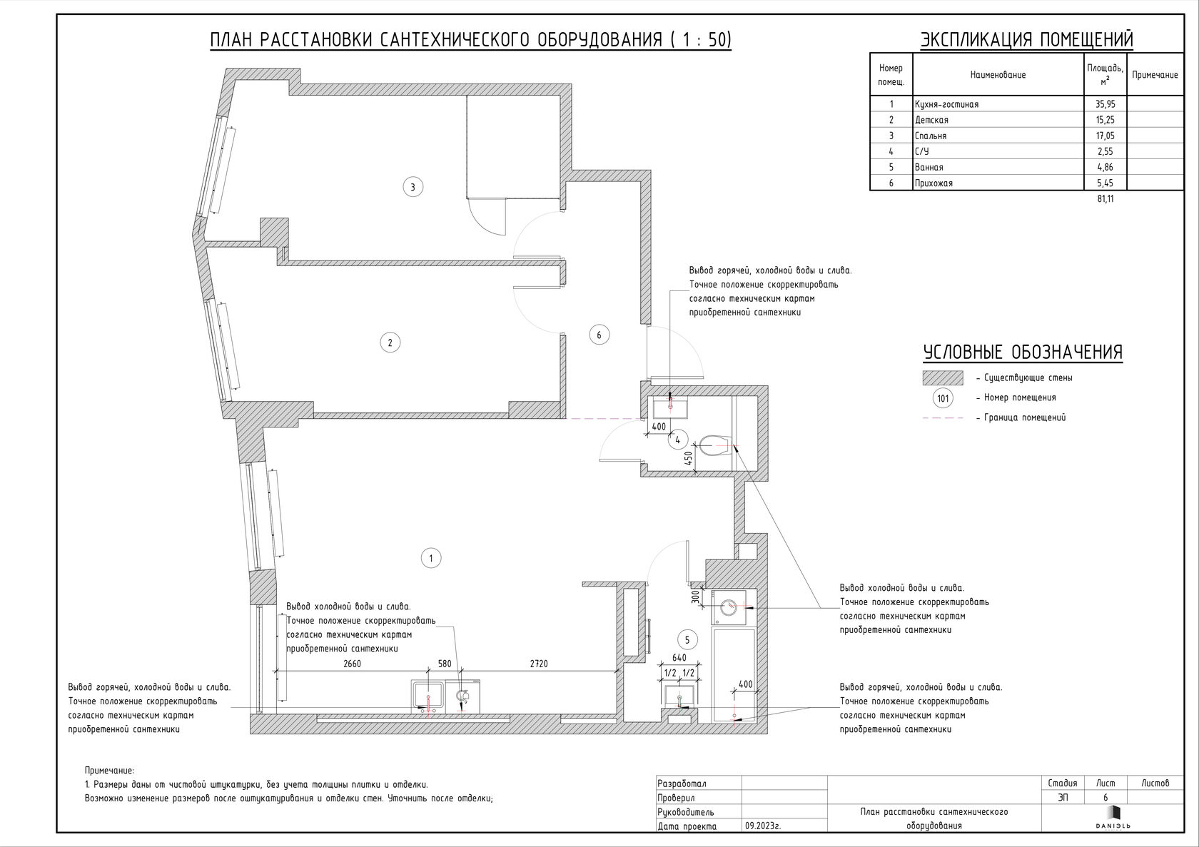
Мы с гордостью представляем наш свежий дизайн-проект квартиры в жилом комплексе "Рубин" по адресу Красноармейская, 157/2. В этом проекте наша команда стремилась создать пространство, которое идеально сочетается с образом жизни владельцев и отражает их индивидуальность. Особое внимание уделили продуманной планировке, которая позволила максимально эффективно использовать каждый квадратный метр. Подбирали материалы и цвета, чтобы наполнить интерьер теплом и стильной элегантностью. Важной частью стала организация удобного и функционального освещения, создающего уютную атмосферу в доме. В итоге получилась квартира, где комфорт и современный дизайн идут рука об руку, делая проживание здесь по-настоящему приятным.
